PROYECTO ELENA

Edificio Multifamiliar - Calle Eucaliptos 148, Los Sauces - Surquillo.



logo

DUBAI INVESTMENTS, presenta Proyecto Elena, un edificio multifamiliar con un área de terreno de 200 m2 y un área construida de 1305.39 m2 aproximadamente. El proyecto, posee amplios departamentos de 1, 2 y 3 dormitorios con vistas a la calle y al parque Marruecos dos parques en todas sus salas, acabados de primera calidad en una de las zonas más estratégicas de Lima.

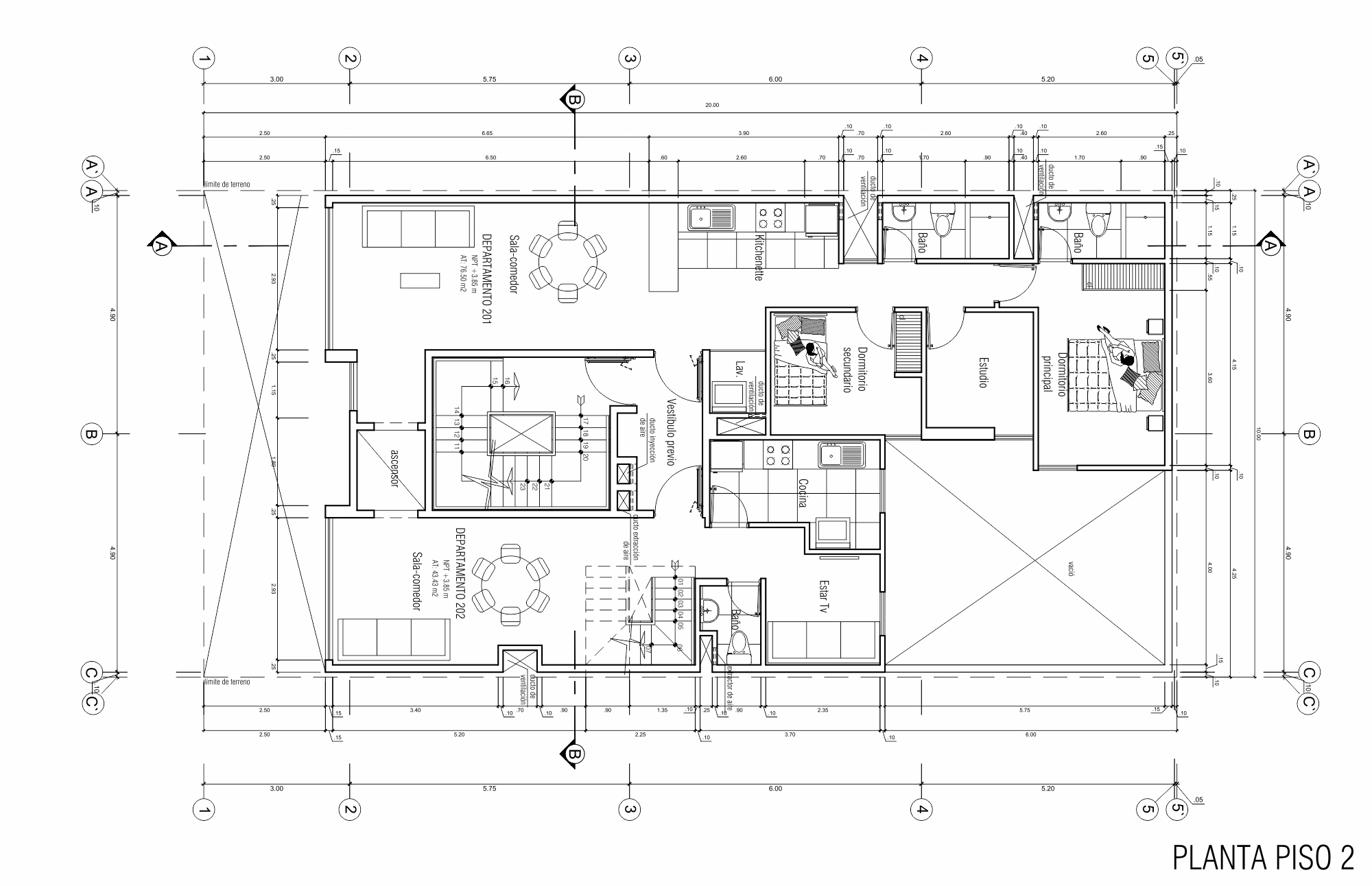
En promedio el Proyecto posee dos departamentos por piso a pocos minutos de Cines, Restaurantes, centros comerciales y supermercados. Áreas desde 63.32 m2, 77.40 m2, 87.90 m2, hasta 123.68 m2, dormitorio principal con baño incorporado y w/clóset. Cocina amoblada, lavandería, cuarto y baño de servicio. Una cochera por departamento, ascensor de última generación.



¿Deseas ver los precios?

Ver Precios

Proyecto Elena




El Proyecto destaca por la sobriedad de su diseño, una línea moderna y materiales expuestos que combinan perfectamente, en los interiores predominan acabados que han sido elegidos responsablemente, considerando un adecuado balance entre calidad y buen gusto.















logo

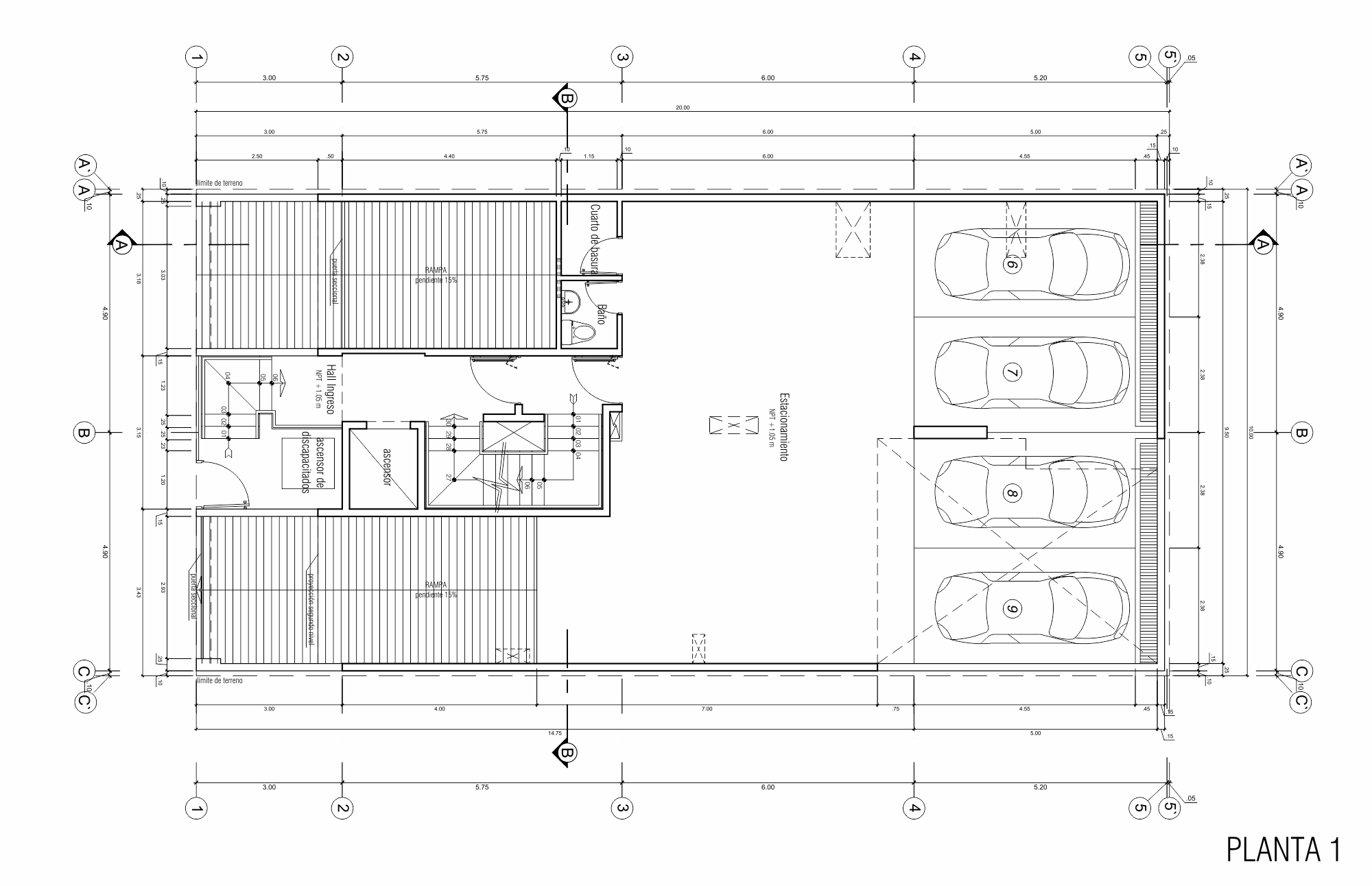
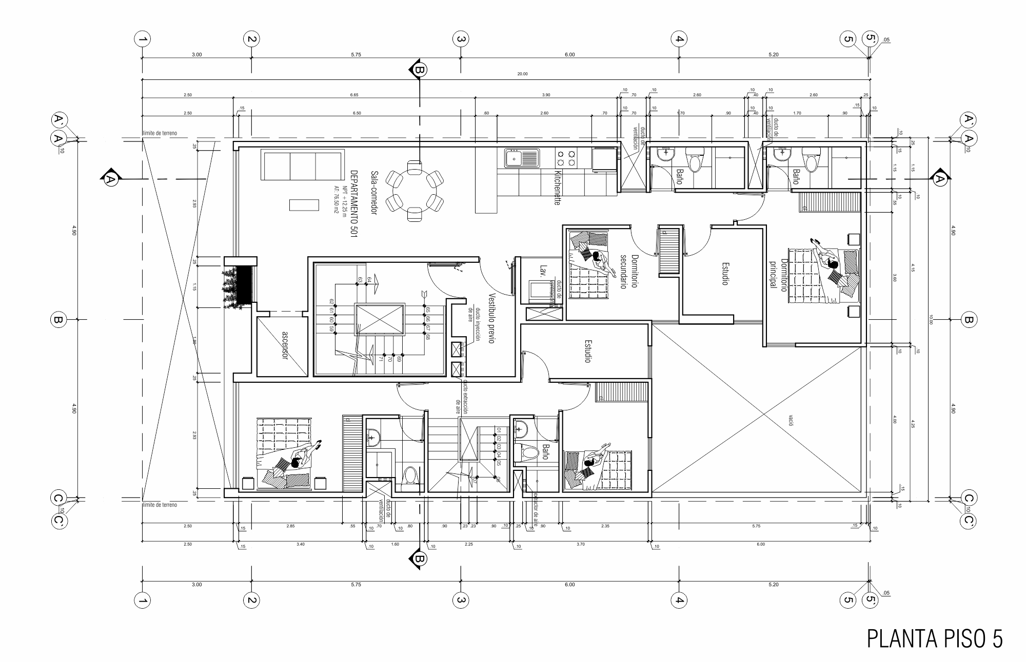
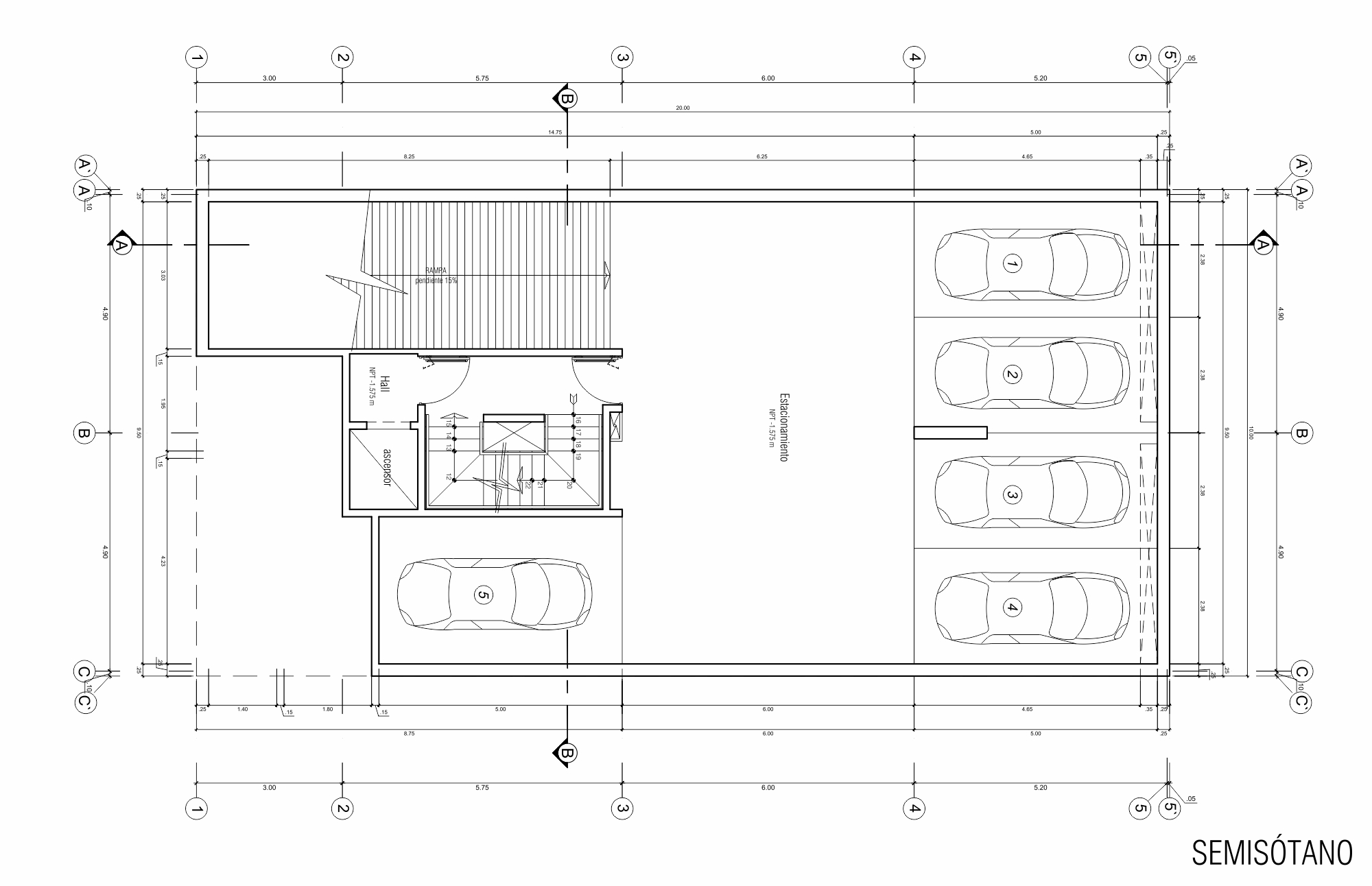
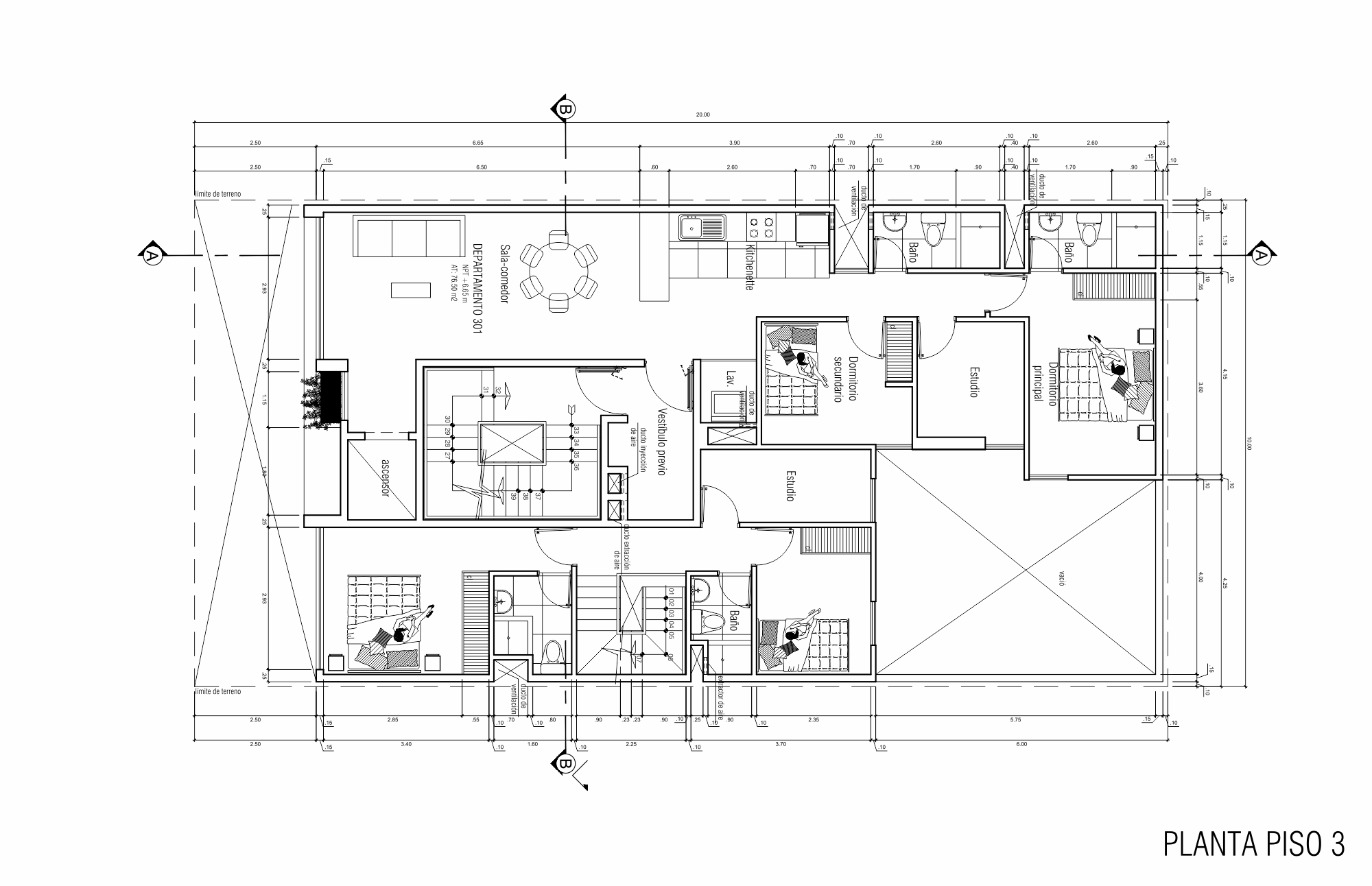
Planos Arquitectónicos

Para ver los planos dale click a la siguiente imagen:

"TENEMOS EL DEPA DE TUS SUEÑOS"





Ubicación

Caseta de Ventas

Dirección: Calle Eucaliptos 148, Los Sauces - Surquillo.
Teléfono: (01) 228 3174
Celular: 949 140 225  /  942 111 334
Email: rosemary@dubainvestments.pe


BASE SIMPLE

Contáctanos

Mándanos tus consultas y solicitudes.

Envíanos un email para poder resolver tus dudas. Si deseas un contacto instantáneo llamanos a los siguientes números.


  • Dirección: Calle Monte Rosa 240 - Chacarilla, Surco.
  • Telf.: (01) 228 3174
  • Celular:  949 140 225   (Rosemary Barreto - Área Comercial)
  • Celular:  942 111 334   (Patricia Chavez - Área Comercial)
  • Email: rosemary@dubainvestments.pe
  • Website: www.dubainvestments.pe